首页
Home
建筑设计
Architectural
建筑工程甲级,国际知名的建筑设计公司,深耕建筑设计行业多年,业务范围覆盖居住建筑、商业建筑、工业建筑、公共建筑、文体建筑、古建遗产、改造建筑、装配建筑等众多领域,以卓越的成本控制能力和优质的原创设计能力深受业主好评,经典案例遍布全国。
居住建筑
Residential
工业建筑
Industrial
公共建筑
Public
古建遗产
Ancient
文体建筑
Style
改造建筑
Renovati
BIM设计
BIM
装配式建筑
Prefabricated
规划设计
Planning
专注规划设计13年,重视城市空间和地域文化对具体项目的要求,提供一站式规划设计服务。通过领先的技术、完善的管理和优良的服务为业主交付优质的规划方案。以科学合理的规划设计,达到经济合理,人与环境和谐共存的目的。
文旅规划
Travel
建筑规划
Architectural
景观规划
Landscape
园林景观
Landscapes
作为资深园林景观设计公司,专注高端别墅庭院景观设计和园林景观工程,一站式提供园林设计、景观设计、旅游景区规划设计、风景园林设计、特色小镇规划设计等设计方案,用我们的设计为您创造价值。
居住环境
Livin
文旅酒店
Tourist Hotel
市政公园
Municipal Park
商业景观
Commercial
美丽乡村
Beautiful Country
室内装饰
Interior
大宸室内装饰致力于办公空间、居住空间、商业零售空间、会所和售楼处等高端室内空间的营造,凭借其独特的创意设计能力、技术落地能力、项目管理能力、成本控制能力以及服务响应能力赢得了业界的一致认可和信任。
公共空间
Public space
酒店会所
Hotel Club
商业餐厅
Dining room
家居公寓
Home apartment
工程管理
Administration
工程管理领域由设计及工程管理均经验丰富的高级工程师、注册工程师组成的精英团队主导,提供全过程工程咨询、工程监理、造价咨询、项目管理、项目代建、项目运营等精细化管理服务。
工程管理
Administration
大宸世界
About Us
大宸设计团队技术实力雄厚,配置有众多博士、硕士、一级注册工程师、高级工程师、工程师等专家。秉承“设计创造价值”的理念,运用综合性的全系列专业技术力量,全心全意为客户提供设计策划、方案设计、工程设计、专项设计、设计优化、设计顾问等系列化服务。
公司介绍
Introduction
大宸文化
Culture
资质荣誉
Honor
合作伙伴
Partner
核心团队
Team
分支机构
Branch
工程总包
Engineering
大宸集采
Engineering
联系我们
Contact Us
以大为方,以宸为仰。大宸所在,祈愿让安居的信念飞入寻常百姓家,让更多优秀的普世的建筑便民利民,让一座城、一个镇、一条村、一个家,变得更美丽、更美好、更幸福,是大宸二字的起源,也是大宸设计多年来精诚守护的价值金石。
大宸动态
Dynamic
行业新闻
Industry News
项目动态
Project
联系方式
Contact
加入大宸
Join
Interior
室内装饰
公共空间
Public space
酒店会所
Hotel Club
商业餐厅
Dining room
家居公寓
Home apartment
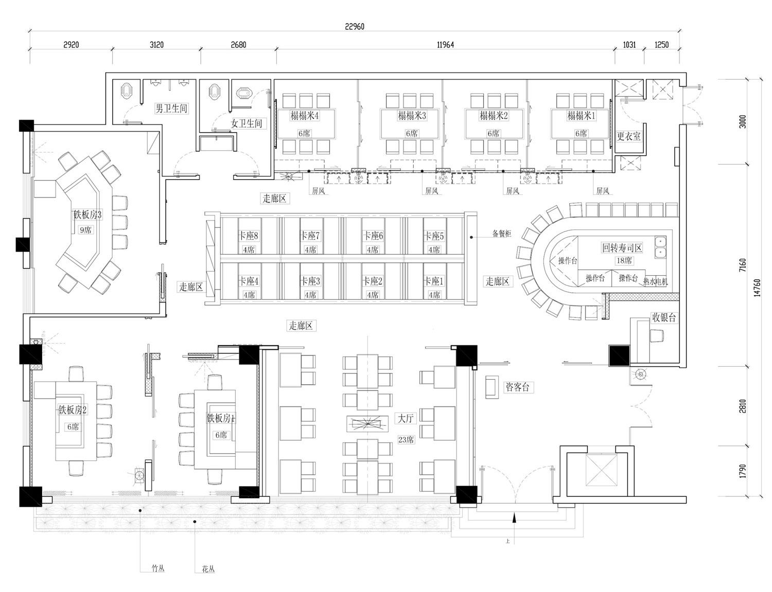
回转寿司
项目概况
回转寿司
返回顶部